Appartement
CAVAILLON (84300)
- 70 m²
- 3 pièce(s)
- 2 chambre(s)
- NC
C'est dans le quartier des jardins au sud de Cavaillon que s'élève la résidence "Le Cabellio", à 10 minutes seulement du centre ville et des commodités.
Au calme, dans un environnement pavillonnaire, les appartements du T2 au T4 offrent des prestations soignées et tout le confort d'un logement neuf avec un extérieur et un parking privatif.
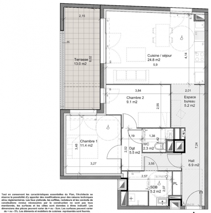
Nous vous présentons ici un T4 de 70m2 environ, en R+3 avec une terrasse de 13m2, et 2 parkings couverts. L'appartement se compose d'un séjour avec cuisine ouverte de 25m2 environ, 2 chambres de 9 et 11m2, un espace bureau, une salle de bain et un wc séparé.
La livraison est prévue pour le 1er trimestre 2025.
Nous pouvons également vous proposer d'autre appartements, du T2 au T4, de 41 à 81m2, de 191 000 euros à 289 000 euros, appelez-nous vite afin de découvrir toutes les opportunités de ce programme.
Honoraires charge vendeur
* Honoraires charge vendeur.











